Auswahltool für Konsumenten/innen - jetzt neu!
Klicken Sie hier, um für Ihre persönliche Wand das richtige Fenster zu finden! Wir prüfen alle Nachweise, die uns zur Verfügung stehen, und schlagen Ihnen Fensterhersteller vor, die für Sie das passende Fenster im Angebot haben.
Auswahltool für Projektpartner/innen
Unsere Projektpartner/innen können auf detailliertere Informationen zugreifen und versetzten Sie dadurch in die Lage, die bauphysikalischen Anforderungen am konkreten Einbauort richtig zu beurteilen.
Ein Denkansatz zur Einleitung
Das Thema „Fenstereinbau“, „Türenmontage“, die Notwendigkeit der Dichtheit, technische Vorgaben in Normen und Regelwerken und viele andere Schlagworte steigern bei vielen Fensterherstellern den Blutdruck da sowohl bei den Konsumenten als auch bei den Professionisten mehrere Meinungen vorherrschen. Dieser Artikel soll einen Beitrag zur fachlichen Auseinandersetzung mit dem Thema und einen Denkanstoß zur momentanen Überarbeitung der ÖNORM B 5320 bieten. Abschließend wird auch auf die Entwicklung der Wohnbauförderung eingegangen welche das Thema „Einbau-Nachweis“ zunehmend zum Förderthema macht.

Entwicklung der letzten Jahre
Bis in die 60er-Jahre des vorigen Jahrhunderts war das reine Ausmauern vielleicht noch das Verfüllen mit Dämmzöpfen gängige Praxis. Die Fugen waren kein Kriterium der Gebäudetechnik da einerseits die Undichtheiten der übrigen Konstruktionen einen ausreichenden Luftwechsel geschaffen haben und andererseits das Nutzungsverhalten der Bewohner während der Heizperiode ein anderes war. So wurde häufig nur ein kleiner Bereich der Wohnung, des Hauses (Küche und angrenzende Räume) beheizt und die restlichen Räume tendenziell nicht bewusst temperiert. Eisblumen und Eiszapfen waren im Winter üblich.
Mit dem Aufkommen von Verbundfensterkonstruktionen und den ersten Isoliergläsern entstand eine neue Situation. Der erste Ölpreisschock in den 1970ern lenkte das Augenmerk bereits auf Energieeinsparung. Maßnahmen wie die „Energiewoche“ (als Energiesparziel der öffentlichen Hand) oder die großflächige Einführung von Erdgas-Heizungen als Ersatz von Kohle (saurer Regen, Waldsterben) wurden rasch von der Bevölkerung als Komfortgewinn genutzt. Der Energieverbrauch stieg ─ und steigt bis heute kontinuierlich weiter.
Dämmung verändert Wärme- und Feuchtehaushalt
Mit dem Aufkommen, für Flächen geeignete, aufschäumender Dämmstoffe wurde die Bautechnik neu geschrieben und das Problem mit dem Fenstereinbau begann. Zu Beginn 5 cm, bald 8 cm heute 20, 25 und mehr Zentimeter dick umhüllen die Dämmsysteme das gesamte Bauwerk und verändern damit den Wärme- und Feuchtehaushalt im Inneren.
In gleichen Schritten wurde das Wärmedämmverhalten der Fenster (U-Wert) von rd. 2,7W/m²K (Kastenfenster 2x Floatglas) auf bis zu unter 0,8W/m²K gesenkt. Parallel dazu wurde, zur weiteren Verbesserung der Heizenergiebilanz, damit begonnen die Fenster mit immer besseren Dichtungen „luftdicht“ zu bauen
Schimmel und Kondenswasser
Als nun zunehmend Probleme am Übergangsbereich zwischen dichter Gebäudehülle und zunehmend dichtem Fenster auftraten wurde fieberhaft versucht geeignete Lösungen zur Reduktion von Schimmel und Kondenswasser zu entwickeln. Dazu zählen u.a. auch Normen die in das österreichische Baurecht Eingang gefunden haben und mit ihren verbindlichen Inhalten zu „üblicherweise zu erwartenden Eigenschaften eines Produktes“ geworden sind. Dazu zählt die ÖNORM B 8110 „Wärmeschutz im Hochbau“ Teil 1-6, besonders Teil 2: „Wasserdampfdiffusion und Kondensationsschutz“. Die erste Regelung dazu wurde 1950 (!) veröffentlicht und bisher 16x überarbeitet und ergänzt.
Fenstereinbau: ÖNORM B 5320
Darauf aufbauend wurde bereits in den 1990er-Jahren begonnen den Fenstereinbau zu regeln. 1999 wurde die erste Version der ÖNORM B 5320 veröffentlicht. Derzeit ist die 3. Generation dieser Norm veröffentlicht und an der 4. Ausgabe wird gerade gearbeitet.
ÖNORM B 8110-2 - der unterschätzte aktuelle Status
Obwohl seit nunmehr über 60 Jahren das Thema Wärmeschutz konkrete Forderungen an den Fenstereinbauenden richtet, gibt es in einer Reihe von beruflichen Fachausbildungen in Österreich (Lehre, Fachschule, HTL, Meisterprüfung) keinen Lehrinhalt zu diesem Thema. Damit ist auch das Unbehagen vieler Fachkräfte zu erklären, wenn es um den „richtigen“ Einbau von Fenstern geht.
Zum einen werden in der Branche günstige Montageangebote "pro Loch" unter „Ausschluss der ÖNORM B5320“ gelegt. Zum anderen werden von Firmen Laufmeterkosten in ähnlich günstiger Höhe verrechnet. Diese Bandbreite zeigt das Problem der Branche, aber auch der Auftraggeber bei der Auswahl geeigneter Lieferanten.
Eines vorweg: Die ÖNORM B5320 kann gerne vertraglich ausgeschlossen werden. Sie ist nicht verpflichtend. Aber Achtung, bevor Sie sich gemütlich zurücklehnen:
Die grundlegenden Forderungen an den Einbau sind nicht in der ÖNORM B 5320 verankert, sondern in der ÖNORM B 8110-2. Diese ist verpflichtend zu erfüllen!
Das Ziel der Normung bei der Entwicklung der ÖNORM B5320 war es von Anfang an, eine Vereinfachung und etwas Klarheit für den Montagebetrieb in die bauphysikalischen Anforderungen der ÖNORM B8110-2 zu bringen. Diesem Ziel dient auch die momentan laufende Überarbeitung mit der Festlegung einer Mindestausführung der Fugenausbildung, zum Beispiel beim Fenstertausch, in die Funktionsebenen:
- Dichten Außen (Schlagregen, Wind).(Dichtheit)
- Dämmen (Wärme, Schall) (Wärmeverluste)
- Dichten Innen (Luftdichtheit, u.U. dampfdiffusionsdicht)
Hinzu kommt die neue Empfehlung der Einbauposition für Fenster in der Leibung in Abhängigkeit von Baukörper und Wanddämmung.
Um zukünftig Klarheit über den Inhalt der Einbauplanung bei Gewerke überschreitender Zusammenarbeit zu erhalten, legt die ÖNORM B 5320 im Kapitel „Anforderungen an die Planung“ einen verständlichen Anforderungskatalog fest. Somit kann jeder Einbaubetrieb die Vorgaben der Planer auf Vollständigkeit kontrollieren. Zusätzlich wird die Haftungsabgrenzung zwischen Planung und Ausführung klar geregelt.
"Neue" Anforderung: Schalldämmung
Eigentlich hat sich die baurechtliche Forderung im Bereich der Schalldämmung kaum geändert. Trotzdem rückt dieser Bereich beim Fenstereinbau zunehmend in den Fokus.
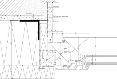
Ein wesentlicher Grund dafür liegt in der zunehmenden Montageposition der Fenster im Dämmbereich der Wandaufbauten.
Diese Position optimiert zwar den Verlauf der Isothermen und der Wärmedämmung, verschlechtert aber das Verhalten der Schalldämmung gravierend. So wird in vielen Fällen das geforderte Schalldämmmaß der Fenster, nachgewiesen im CE-Kennzeichen (z.B. Rw > 38dB), durch diese Einbauposition vollkommen außer Kraft gesetzt, da die Schallbrücke der WDVS-Dämmung das System auf rd. 30dB drückt. – Die Problemanfragen in diesem Bereich nehmen rasant zu.
Wir bedanken uns bei unseren Partnern!

Kooperationsförderung des Landes Oberösterreich

Förderung des Salzburger Wachstumsfonds

Kooperationsförderung des Niederösterreichischen Wirtschafts- und Tourismusfonds
Innovationsschub durch Bündelung der Kräfte
Ein Kooperationsprojekt mit 24 innovativen Unternehmen aus den betreffenden Branchen (Fensterproduktion, -montage, Baustoffindustrie, Vor- und Zulieferindustrie) gab den Initialimpuls für die Plattform Bauanschluss. Kooperativ erarbeiten die Betriebe im vom Land NÖ, OÖ und Salzburg geförderten Projekt „Bauanschluss“ unter fachlicher Leitung von Rudolf Exel und seinem Projektteam bauphysikalisch optimierte Fenster- und Türenanschlüsse an die Außenbauteile. Neben Isothermenberechnungen und der Beurteilung von Diffusion und Schimmelbildungsgefahr der betreffenden Einbaulösungen aus der Praxis werden an den Prüfständen der Holzforschung Austria und des TGM, Fachbereich Akustik und Bauphysik an der Bauanschlussfuge von ausgewählten Konstruktionen Dichtheits- und Schallschutzversuche durchgeführt, analysiert, bewertet und die Konstruktionen daraufhin optimiert. Projektlaufzeit ist von Mai 2013 – Juni 2014. Die Ergebnisse samt Montagezeichnungen und Prüfberichten werden über diese Online-Plattform den Projektpartnern im Zuge des Projektes „Bauanschluss“ zugänglich gemacht (die webbasierte Plattform ist nicht Bestandteil des geförderten Projekts).
Weiterführende Quellen für Interessierte
Österreichisches Normungsinstitut: ÖNORM B 5320, Bauanschlussfuge für Fenster, Fenstertüren und Türen in Außenbauteilen, Grundlagen für Planung und Ausführung, Ausgabe 2006-09-01, Wien
Österreichisches Normungsinstitut: Arbeitsentwurf ÖNORM B 5320, Einbau von Fenstern, Fenstertüren und Türen in Außenwänden - Grundanforderungen, Planung, Ausführung und Material, geplanter Veröffentlichungszeitraum 2013/14, Wien
Österreichisches Normungsinstitut: ÖNORM B 8110, Wärmeschutz im Hochbau, Wien
Österreichisches Normungsinstitut: ÖNORM B 8115-2, Schallschutz und Raumakustik im Hochbau, Wien

